Architektur
Café al Vetro
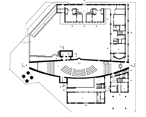
Gemeindezentrum Blumenberg
Haus Adenauer | Gartenpavillon
Haus Denkler-Jacobs | Umbau
Haus Hammers | im Bau
Haus Kortmann | Bibliothek
Haus Kühnen | Bad
Haus Landsberg | im Bau
Haus Maintz
Haus Marie-Luise Maintz | Umbau
Haus Martin Maintz | Projekt
Haus Thomas Maintz | Umbau
Haus Poeten
Haus Schainberg
Haus Schuller
Haus Tippkötter | Glashaus
Wohnung Thorn-Prikker | Umbau
Farbgestaltung
Möbel
Andere Projekte
Curriculum Vitae
Impressum
Fotos
Modelle
Zeichnungen | Grundriss EG
1
2
3
4
5
6
7
8
9